De adviesraad voor straatnaamgeving heeft advies uitgebracht en het College van Burgemeester en Wethouders van de gemeente Deventer heeft definitief akkoord gegeven voor twee nieuwe straatnamen in Schalkhaar: Het Bouwland en Hagenvoordererf.
SCHALKHAAR – Het inbreidingsplan aan de Hagenvoorderdijk is een geplande ontwikkeling naast de bestaande boerderij aan de Hagenvoorderdijk. In het nieuwbouwplan worden 40 woningen gesitueerd. Hiervoor is het nodig om twee nieuw aan te leggen straten een naam te geven.
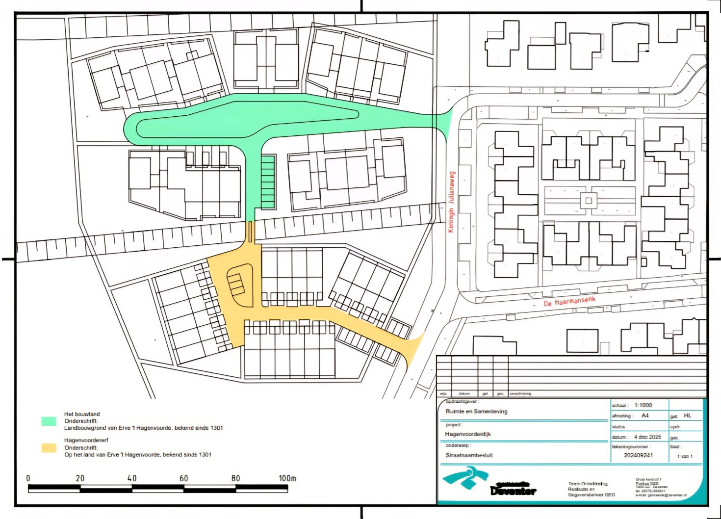
De op de kaart blauw aangeduide straat in Schalkhaar krijgt de naam ‘Het Bouwland’ (straatcode 9648) met daarbij het onderschrift: Landbouwgrond van Erve ’t Hagenvoorde, bekend sinds 1301. De op de kaart geel aangeduide straat in Schalkhaar krijgt de naam ‘Hagenvoordererf’ (straatcode 9550) met daarbij het onderschrift: Op het land van Erve ’t Hagenvoorde, bekend sinds 1301.
‘Het Bouwland’ is een verwijzing naar het gebruik van de gronden rondom de boerderij Erve ’t Hagenvoorde. Bouwland is het land waar de gewassen werden verbouwd. Het sluit aan bij de bestaande straatnamen Het Hooiland en Het Koeland in de naastgelegen wijk. Dit zijn ook straatnamen die betrekking hebben op het gebruik van de gronden om Erve ’t Hagenvoorde.
‘Hagenvoordererf’ is een verwijzing naar de naastgelegen (voormalige) boerderij Erve ’t Hagenvoorde.
Op maandag 9 februari a.s. om 18.00 uur houden Woonstichting De Marken en WIS 55+ in de Nicolaasschool aan de Pastoorsdijk een derde informatieronde over het nieuwbouwproject aan de Hagenvoorderdijk. Vervolgens zal het omgevingsplan ter inzage komen en in mei 2026 wordt daarvan de vaststelling verwacht. Meer info: www.wis55plus.nl

